Дом №2 ЖК Днепровский
БАМ, Приморский край, г. Владивосток, ул. ул. Днепровская, д. 100
ЖК: Днепровский
Застройщик: ООО СЗ ТЕМЕЛ
|
| Сроки строительства: | I кв., 2027 |
| Стадия строительства: | Строится |
| Тип дома: | Монолит-кирпич |
| Отделка помещений: | с отделкой |
| Кол-во подъездов: | 1 |
| Этажей: | 23 |
| Высота потолка: | 2.7 |
Оставить заявку
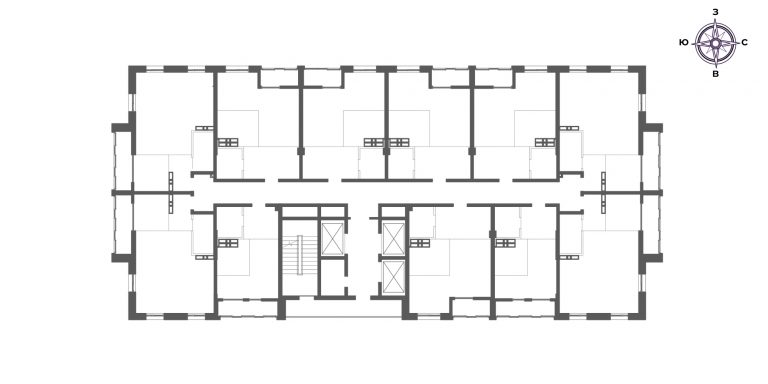
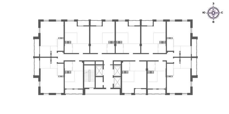
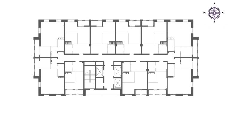
Планировки этажей
Квартиры в доме
Всего 242 квартир, из них свободно 105
23 | СПродано | 3-еПродано | 3-еПродано | 2-еПродано | 2-еПродано | 2-еПродано | 2-еПродано | 3-еПродано | 3-еПродано | СПродано | 2-еПродано |
22 | СПродано | 3-еПродано | 3-еПродано | 2-еПродано | 2-еПродано | 2-еПродано | 2-еПродано | 3-еПродано | 3-еПродано | СПродано | 2-еПродано |
21 | СПродано | 3-е | 3-еПродано | 2-е | 2-еПродано | 2-еПродано | 2-е | 3-е | 3-е | С | 2-еПродано |
20 | СПродано | 3-е | 3-е | 2-еПродано | 2-е | 2-е | 2-е | 3-е | 3-е | СПродано | 2-еПродано |
19 | СПродано | 3-е | 3-е | 2-е | 2-е | 2-е | 2-е | 3-е | 3-е | С | 2-еПродано |
18 | СПродано | 3-е | 3-е | 2-е | 2-е | 2-е | 2-еПродано | 3-е | 3-е | СПродано | 2-еПродано |
17 | СПродано | 3-е | 3-е | 2-еПродано | 2-е | 2-е | 2-еПродано | 3-е | 3-е | С | 2-еПродано |
16 | СПродано | 3-е | 3-е | 2-е | 2-е | 2-е | 2-е | 3-е | 3-е | С | 2-еПродано |
15 | СПродано | 3-е | 3-е | 2-е | 2-е | 2-е | 2-е | 3-е | 3-е | СПродано | 2-еПродано |
14 | СПродано | 3-е | 3-еПродано | 2-е | 2-еПродано | 2-е | 2-е | 3-еПродано | 3-еПродано | СПродано | 2-еПродано |
13 | СПродано | 3-е | 3-е | 2-е | 2-еПродано | 2-е | 2-е | 3-еПродано | 3-е | СПродано | 2-еПродано |
12 | СПродано | 3-е | 3-е | 2-е | 2-е | 2-е | 2-е | 3-еПродано | 3-е | С | 2-еПродано |
11 | СПродано | 3-еПродано | 3-е | 2-е | 2-е | 2-е | 2-е | 3-е | 3-е | СПродано | 2-еПродано |
10 | СПродано | 3-е | 3-е | 2-е | 2-е | 2-е | 2-е | 3-е | 3-еПродано | СПродано | 2-еПродано |
9 | СПродано | 3-е | 3-е | 2-еПродано | 2-еПродано | 2-еПродано | 2-еПродано | 3-еПродано | 3-еПродано | СПродано | 2-еПродано |
8 | СПродано | 3-е | 3-е | 2-еПродано | 2-еПродано | 2-е | 2-еПродано | 3-еПродано | 3-е | СПродано | 2-еПродано |
7 | СПродано | 3-е | 3-е | 2-е | 2-е | 2-е | 2-еПродано | 3-еПродано | 3-е | СПродано | 2-еПродано |
6 | СПродано | 3-е | 3-е | 2-е | 2-еПродано | 2-е | 2-е | 3-е | 3-е | СПродано | 2-еПродано |
5 | СПродано | 3-еПродано | 3-еПродано | 2-еПродано | 2-еПродано | 2-еПродано | 2-еПродано | 3-еПродано | 3-еПродано | СПродано | 2-еПродано |
4 | СПродано | 3-еПродано | 3-еПродано | 2-еПродано | 2-еПродано | 2-еПродано | 2-еПродано | 3-еПродано | 3-еПродано | СПродано | 2-еПродано |
3 | СПродано | 3-еПродано | 3-еПродано | 2-еПродано | 2-еПродано | 2-еПродано | 2-еПродано | 3-еПродано | 3-еПродано | СПродано | 2-еПродано |
2 | С | 3-еПродано | 3-еПродано | 2-еПродано | 2-еПродано | 2-еПродано | 2-еПродано | 3-еПродано | 3-еПродано | СПродано | 2-еПродано |
Похожие ЖК
Перейти в каталог ЖК























